Geländer mit Staketen aus Holz
Achritekt: AND Kolektiv AG
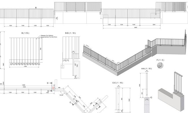
Verzinkte Geländer für Terrassen und französiche Balkone. Feuerverzinkt mit Staketen aus Holz.






















Tags: Geländer, Französischer Balkon, Holzlatten
Achritekt: AND Kolektiv AG
Verzinkte Geländer für Terrassen und französiche Balkone. Feuerverzinkt mit Staketen aus Holz.





















