Isometrische Darstellung der kompletten Tragstruktur der Balkonanlage. Gut sichtbar ist der Aufbau der Stahlkonstruktion mit den vertikalen Rohren und den auskragenden Balkonrahmen. Ebenfalls erkennbar sind die relativ langen Ankerstangen, mit denen die Konstruktion in den Geschossdecken des Gebäudes verankert wurde.
Neue Balkone für ein Mehrfamilienhaus
Neue, angebaute Balkontürme für ein Mehrfamilienhaus in Zürich
Architekt: Schilbiholenstein AG, Zürich
Für ein Mehrfamilienhaus wurden zwei neue Balkontürme erstellt und die Südseite mit zusätzlichen Balkonen ergänzt. Die neuen Balkone orientieren sich gestalterisch am Stil der bestehenden Anlage aus der Bauzeit vor rund fünfzig Jahren.
Die Balkonböden wurden mit robusten Mineralitplatten ausgeführt. Die Geländer greifen die historische Gestaltung auf und kombinieren feingewelltes Wellblech mit partiell transparenten Flächen aus Edelstahl-Streckmetall. So entsteht eine zeitgemässe Balkonerweiterung, die sich harmonisch in das bestehende Gebäude einfügt.

Ansicht der fünfstöckigen Balkonanlage von der Seite des gegenüberliegenden Schulhausparkplatzes. Die neuen Balkontürme wurden als eigenständige Stahlkonstruktion vor die Fassade gestellt und erschliessen mehrere Geschosse des Gebäudes. Für den obersten Balkon wurde zusätzlich ein Vordach integriert, das den Aufenthaltsbereich vor Regen schützt.

Hier sind beide Balkontürme zu sehen. Im Vordergrund befindet sich der kleinere Turm mit Balkonen über drei Geschosse, während im Hintergrund der grössere Turm über fünf Stockwerke reicht. Die neuen Stahlkonstruktionen wurden vor die bestehende Fassade gestellt und erweitern die Wohnungen um zusätzliche Aussenräume.

Die Balkongeländer wurden mit fein gewelltem Wellblech ausgeführt und greifen damit die Gestaltung der ursprünglichen Anlage auf. In der Front ist jeweils ein eingerahmtes Feld aus Edelstahl-Streckmetall eingesetzt, das mehr Licht und Durchsicht auf den Balkon bringt. Von unten wird die Tragstruktur der darüberliegenden Balkone sichtbar, die mit einer leicht durchsichtigen Streckmetall-Untersicht verkleidet wurde.

Balkon im Erdgeschoss der Anlage. Die Balkonböden wurden mit Mineralitplatten ausgeführt und mit einer integrierten Wasserrinne versehen. Ein kleiner Ausschnitt im Wellblech der Geländerverkleidung ermöglicht, dass das Regenwasser kontrolliert abtropfen kann.

Hier sind beide Balkontürme nebeneinander im gleichen gestalterischen Stil zu sehen. Die Konstruktionen aus Stahl greifen mit den Geländern aus fein gewelltem Wellblech und den transparenten Feldern aus Streckmetall die Gestaltung der bestehenden Balkone auf und fügen sich harmonisch in die Fassade des Mehrfamilienhauses ein.

Auch beim Hauseingang wurde ein neues Vordach erstellt. Im Gegensatz zu den Dächern der Balkone wurde hier eine Verglasung eingesetzt, die den Eingangsbereich vor Witterung schützt und gleichzeitig genügend Licht durchlässt. Die Stahlkonstruktion greift farblich und gestalterisch die neuen Balkonanlagen auf und fügt sich so harmonisch in das Gesamtbild des Gebäudes ein.

Auch an den bestehenden Balkonen auf der Südseite des Gebäudes wurden neue Geländer im gleichen Stil wie bei den Anbaubalkonen montiert. Die Geländer mit fein gewelltem Wellblech und den eingesetzten Streckmetallfeldern greifen die Gestaltung der neuen Balkone auf. In diesem Bereich wurden sie jedoch direkt in den bestehenden Betonplatten der Balkone verankert.

Bei der Massaufnahme waren die alten Balkone noch vorhanden. Kurz danach wurden diese zurückgebaut, um Platz für die neuen Balkonanlagen und die angepassten Geländer zu schaffen. Die Bestandesaufnahme diente als Grundlage für Planung und Konstruktion der neuen Balkontürme.

Auch beim fünfstöckigen Gebäude mussten die genauen Stockwerkhöhen und Abstände der bestehenden Balkone sorgfältig vermessen werden. Diese Bestandesaufnahmen bildeten die Grundlage für die Planung der neuen Balkontürme und stellten sicher, dass sich die neue Konstruktion präzise an die vorhandene Gebäudestruktur anpassen lässt.

Ansicht der kleineren Balkonanlage im 3D-Modell. Die Darstellung zeigt den Aufbau der Stahlkonstruktion mit den übereinander angeordneten Balkonen sowie das Dach über dem obersten Balkon. Das Modell diente als Grundlage für Planung, Dimensionierung und die Erstellung der Werkstattzeichnungen.

Seitenansicht der Balkonanlage im 3D-Modell. Gut erkennbar ist die vor die Fassade gestellte Stahlkonstruktion mit den übereinander angeordneten Balkonen sowie dem Vordach über dem obersten Geschoss. Die Darstellung zeigt den konstruktiven Aufbau und die Anbindung der Balkone an das bestehende Gebäude.

Perspektivische Darstellung der Balkonanlage im 3D-Modell. Die Visualisierung zeigt den Aufbau der Stahlkonstruktion mit den übereinander angeordneten Balkonen, den Geländern aus Wellblech und den transparenten Feldern aus Streckmetall. Auch das Vordach über dem obersten Balkon ist im Modell dargestellt und vermittelt einen guten Eindruck der räumlichen Wirkung der Anlage.

Detailansicht eines Balkons im 3D-Modell. In dieser Darstellung sind auch verdeckte Kanten eingeblendet, wodurch sich der konstruktive Aufbau der Geländer und der Balkonplattform besser nachvollziehen lässt. Gut erkennbar sind das fein gewellte Wellblech, die eingesetzten Streckmetallfelder sowie die Tragstruktur der Stahlkonstruktion.

Vertikalschnitt im 3D-Modell der Balkonkonstruktion. Von unten sind die Tragstruktur der Stahlkonstruktion sowie der Aufbau der Balkonplatte gut erkennbar. Ebenfalls sichtbar ist die integrierte Entwässerung, über die das Regenwasser kontrolliert abgeführt wird.

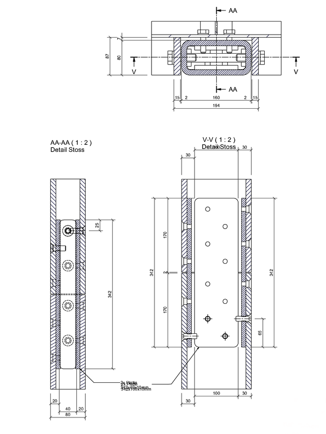
Detailplan der Verbindung der vertikalen Träger. Jeweils zwei vertikale Rohre übernehmen die Aussteifung der Konstruktion und sorgen für die nötige Stabilität der stützenlosen Balkonanlage. Die Zeichnung zeigt den konstruktiven Aufbau der Verbindung sowie die Verschraubung der einzelnen Bauteile.


Explosionsdarstellung des Aufbaus eines Balkons. Die Zeichnung zeigt die einzelnen Bauteile der Konstruktion – vom tragenden Stahlrahmen über die Balkonplatte bis zu den Geländerelementen aus Wellblech und Streckmetall. Diese Darstellung hilft, den konstruktiven Aufbau und die Reihenfolge der Montage besser zu verstehen.

Für die Montage der Balkonanlagen wurde ein Kran eingesetzt, um die grossen Stahlbauteile präzise an ihren Platz zu heben. Das bestehende Baugerüst musste dafür teilweise ausgespart werden, damit die Elemente von oben eingehoben und an der Fassade montiert werden konnten.

Hier bereiten unsere Monteure die Stützen für die Montage vor. Die Bauteile werden abgeladen, ausgelegt und entsprechend der Montagereihenfolge sortiert, damit sie anschliessend Schritt für Schritt mit dem Kran an der Fassade montiert werden können.

Detail der Geländerecke. Hier ist gut sichtbar, wie das fein gewellte Wellblech in den Ecken präzise gefügt wurde. Die Profilierung der Bleche läuft sauber zusammen und bildet eine klare Kante innerhalb des umlaufenden Stahlrahmens.

Innenansicht eines Balkons. Der Boden wurde mit Mineralitplatten und seitlichen Aufkantungen ausgeführt, die das Wasser zur Entwässerung führen. Gut sichtbar ist auch die Befestigung der Wellblechfelder: Diese wurden mit eigens angefertigten, abgesetzten Laschen am Stahlrahmen montiert.