Stehlen aus Metall für die Orientierung
Kunde: Heyday Konzeption und Gestaltung GmbH für Siedlung Holliger in Bern
Für die Siedlung Holliger in Bern durften wir in Zusammenarbeit mit Heyday die Signaletik-Elemente realisieren. Heyday entwickelte ein System, das mit farbig akzentuierten Rahmen auf die Diversität des neuen Quartierteils eingeht und gleichzeitig modular sowie flexibel aufgebaut ist.
Die leuchtenden Farben machen die Elemente bereits aus der Distanz gut sichtbar. Sie dienen als klare Orientierungspunkte im Aussenraum und ziehen Besuchende intuitiv an. Die unterschiedliche Anordnung der Farbakzente spiegelt das Zusammentreffen verschiedener Bauträger, Nutzungen und Kulturen auf dem Areal wider.
Unsere Aufgabe bestand in der konstruktiven Ausarbeitung, Produktion und Montage der Metallkonstruktionen. Das System wurde so entwickelt, dass einzelne Elemente bei Mieterwechseln oder Nutzungsanpassungen unkompliziert ausgetauscht oder ergänzt werden können.
So entstand eine robuste, langlebige und zugleich wandelbare Signaletiklösung, die Identität stiftet und Orientierung im urbanen Raum schafft.

Bild: Heyday
An verschiedenen zentralen Punkten innerhalb der Siedlung wurden die Stelen als Orientierungselemente platziert. Sie markieren wichtige Wegeachsen, Zugänge und Treffpunkte und dienen sowohl Bewohnenden als auch Besuchenden als klare Anlaufstellen.
Durch ihre markante Farbgebung sind die Elemente bereits aus der Distanz gut erkennbar und schaffen im weitläufigen Areal eine intuitive Wegführung. Die präzise gesetzten Standorte sorgen dafür, dass die Signaletik nicht nur informiert, sondern den Aussenraum aktiv strukturiert und Identität stiftet.

Bild: Heyday
Der konstruktive Aufbau der Stele wurde so entwickelt, dass sämtliche Rahmenteile einzeln gefertigt und in den jeweiligen Farben lackiert werden konnten.
Durch die modulare Gliederung der Profile liessen sich die farbigen Elemente getrennt beschichten und erst danach passgenau montieren. Dies gewährleistet saubere Farbübergänge, eine hohe Oberflächenqualität sowie eine langlebige Ausführung im Aussenraum.
Die präzise Abstimmung von Konstruktion und Beschichtung war entscheidend, um die kräftigen Farbakzente technisch einwandfrei und gestalterisch überzeugend umzusetzen.

Die farbigen Akzente der Signaletik greifen die Gestaltung der Gebäude auf und fügen sich in das architektonische Gesamtkonzept ein.
Auch an den Fassaden und Treppenanlagen werden kräftige Farben eingesetzt, die Identität schaffen und den Charakter des Quartiers prägen. Die Stelen nehmen diese Farbwelt auf und übertragen sie in den Aussenraum als Orientierungselemente.
So entsteht ein stimmiges Zusammenspiel von Architektur und Signaletik – die Farben dienen nicht nur der Gestaltung, sondern unterstützen aktiv die räumliche Orientierung innerhalb der Siedlung.


Bereits im 3D-Modell wurde die Konstruktion so entwickelt, dass der Zusammenbau präzise und effizient erfolgen kann.
Die innere Rahmenstruktur ermöglicht das exakte Einsetzen der Informationstafeln und sorgt gleichzeitig für Stabilität und Dauerhaftigkeit im Aussenraum. Durch die detaillierte Planung konnten Toleranzen früh berücksichtigt und die Montage vor Ort vereinfacht werden.
So entstand ein System, das gestalterische Anforderungen mit technischer Funktionalität verbindet – modular aufgebaut, wartungsfreundlich und für zukünftige Anpassungen vorbereitet.



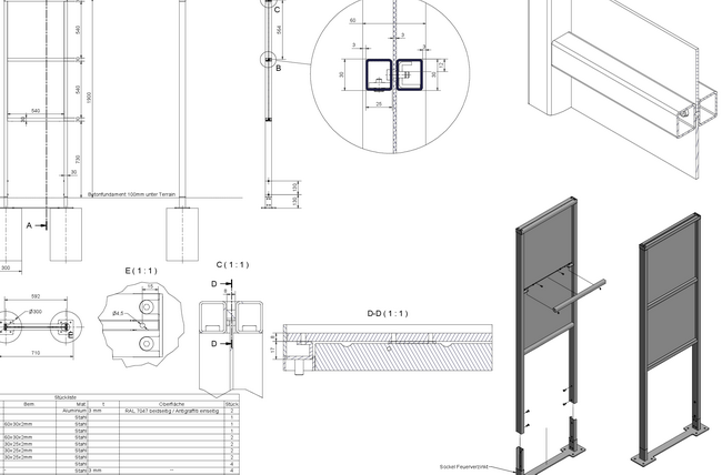
Der Werkstattplan bildet die Grundlage für eine präzise Produktion und reibungslose Montage vor Ort.
In den Detail- und Schnittzeichnungen sind sämtliche relevanten Masse, Verschraubungen sowie Fundamentanschlüsse definiert. Die Darstellung der Fussplatten und Einbetonier- bzw. Verschraubungspunkte gewährleistet eine exakte Positionierung im Terrain.
Parallel dazu zeigt die Explosionsdarstellung den strukturellen Aufbau der Stele mit Innenrahmen, Tafelaufnahme und Sockel – ein klar gegliedertes System, das Fertigung, Beschichtung und Endmontage logisch aufeinander abstimmt.
So entsteht aus Planung und Konstruktion ein robustes, langlebiges Produkt, das gestalterische Qualität mit technischer Präzision verbindet.

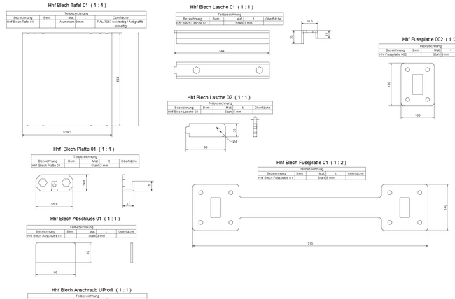
In der Werkstattzeichnung werden sämtliche Einzelteile separat ausgezogen und detailliert bemaßt. Jede Lasche, Platte, Fusskonsole und jedes Profil erhält eine eigene Positionsnummer mit Materialangabe, Oberfläche und Stückzahl. Diese saubere Stücklistenerstellung bildet die Grundlage für die Beschaffung von Rohmaterial, den Zuschnitt sowie die Weiterbearbeitung.
Durch das exakte Ausziehen der Einzelteile können Materialbestellungen präzise kalkuliert und Zuschnitt- sowie Biegearbeiten effizient vorbereitet werden. Auch Beschichtung und farbgetrennte Lackierung lassen sich so klar strukturieren. Die detaillierte Planung schafft damit eine verlässliche Basis für eine wirtschaftliche Produktion und eine reibungslose Montage vor Ort.

Bild: Heyday
Auch weitere Zugänge innerhalb der Überbauung werden durch diese Stelen klar markiert.
Die farbig akzentuierte Konstruktion wirkt bereits aus der Distanz als Orientierungspunkt und führt Besuchende intuitiv in das Quartier hinein. Gleichzeitig fügt sich die Stele selbstverständlich in den Aussenraum zwischen Wohnbauten, Wegen und Grünflächen ein.
So übernehmen die Elemente nicht nur eine informative Funktion, sondern strukturieren den Raum und unterstützen die Wegeführung im gesamten Areal.