Pegelstand an der Sihl beim Schwemmholzrechen und Hauptbahnhof
Verzinkte Markierungen, Zeichen und Schilder
Am Schwemmholzrückhalt an der Sihl wurden zur Kontrolle von Sohle und Wasserstand präzise Markierungen realisiert. Entlang des Bauwerks dienen diese als klare Orientierung und machen die Veränderung des Pegelstands unmittelbar ablesbar.
Die Markierungen sind integraler Bestandteil des Bauwerks und greifen dessen funktionale und gestalterische Klarheit auf. Der Schwemmholzrechen selbst wird dabei zur Messlatte und verbindet Ingenieurskunst mit einer reduzierten, landschaftsbezogenen Gestaltung.

Beschrifteter Pegelpfahl am fertiggestellten Schwemmholzrechen im Sihltal. Die Markierungen machen den Wasserstand der Sihl direkt vor Ort ablesbar und fügen sich klar in die lineare Struktur des Bauwerks ein.

Die gesamte Anlage des Schwemmholzrechens im Sihltal zeigt sich in ihrer eindrücklichen Dimension. Die lineare Abfolge der Stahlpfähle strukturiert den Flussraum und macht die Funktion des Bauwerks über die gesamte Länge ablesbar.

Die Markierungen wurden aus 5 mm starkem Stahlblech gefertigt und in feuerverzinkter Ausführung an den Rechenstäben montiert.

Die Positionen der Markierungen wurden auf Grundlage der Vermessungsdaten exakt festgelegt und entsprechend präzise montiert.

Hier die Postbrücke beim Hauptbahnhof Zürich. Auch an diesem stark frequentierten Ort wurden Pegelstandsanzeigen angebracht, jedoch bewusst zurückhaltend und nur aus der Perspektive entlang der Sihl unterhalb der Brücke wahrnehmbar.
Die Markierungen sind in die bestehende Infrastruktur integriert und richten sich primär an Fachpersonen sowie an Beobachtende im direkten Flussraum. Dadurch bleiben sie im Stadtraum weitgehend unsichtbar, erfüllen aber dennoch präzise ihre Funktion zur Kontrolle des Wasserstands.

Hier ist die Pegelmarke im Alltag kaum mehr wahrnehmbar. Überlagerungen wie Verschmutzung, Witterungseinflüsse und Graffiti führen dazu, dass die Beschriftung nur noch schwer lesbar ist.

Detail der Pegelmarke auf der Höhe von 405.17 Metern über Meer.

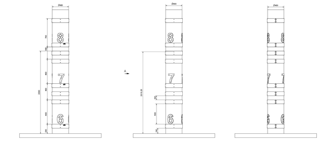
Ansichten der Rechenpfosten aus den Produktionsplänen mit Positionierung der Markierungen und Höhenangaben.



Unsere Monteure bei der Montage der Pegelmarkierungen an den Rechenpfosten vor Ort im Sihltal.