Stadttunnel Signaletik und Lüftung
Orientierung im Velotunnel
Auftrag von: Hinder Schlatter Feuz für Hochbauamt
Für den neuen Velotunnel in Zürich realisierte die Metall Werk Zürich AG die komplette Signaletik. Dazu gehören Wegweiser, Orientierungstafeln sowie Informationselemente – analog zur Gestaltung im Veloparking beim Hauptbahnhof.
Zum Einsatz kamen quadratische, partiell gelochte Bleche mit Digitaldruck. Die Kombination aus präziser Metallverarbeitung und widerstandsfähiger Beschriftung gewährleistet eine klare Besucherführung sowie eine langlebige Lösung im stark frequentierten öffentlichen Raum.

Rückansicht der grossformatigen Signaltafeln über der Einfahrtsrampe beim Sihlquai.
Die quadratischen, partiell gelochten Bleche sind in stabile Stahlrahmen eingespannt und auf einer Trägerkonstruktion montiert. Trotz ihrer Leichtigkeit bieten sie hohe Steifigkeit und Windstabilität. Die Perforation reduziert Windlasten und verleiht den Elementen gleichzeitig eine prägnante, technisch klare Erscheinung.

An der Einfahrt an der Konradstrasse wurden die quadratischen Signaltafeln direkt am betonierten Eingangsportal befestigt.
Die von uns gefertigte Stahl-Unterkonstruktion ist präzise an das bestehende Bauwerk angepasst und oben am Portal verankert. So entsteht eine klare, schwebende Wirkung über der Rampe, ohne die Linienführung des Bauwerks zu stören.
Die partiell gelochten Bleche mit Digitaldruck greifen die visuelle Sprache des Projekts auf und sorgen für eine gute Fernwirkung – selbst bei wechselnden Lichtverhältnissen im Tunnelbereich.

Im Tunnel selbst kamen diese Wegweiser-Elemente an verschiedenen Stellen zum Einsatz.
Die Basis bilden quadratische, partiell gelochte Bleche mit Digitaldruck, die das wiederkehrende Gestaltungsmotiv aufnehmen. Darauf montiert sind klar strukturierte Informationstafeln mit Piktogrammen und Beschriftung.
Durch den modularen Aufbau lassen sich Inhalte flexibel kombinieren und bei Bedarf austauschen. Die robuste Metallkonstruktion ist für den dauerhaften Einsatz im öffentlichen Raum ausgelegt und fügt sich präzise in die rohe Betonstruktur des Velotunnels ein.

Die Einfahrt am Sihlquai wird durch die grossformatigen Signaltafeln klar markiert und schon aus der Distanz lesbar.
Über der Rampe positioniert, bilden die quadratischen, partiell gelochten Bleche mit Digitaldruck ein starkes visuelles Zeichen im Stadtraum. Die Konstruktion ist so ausgelegt, dass sie trotz schlanker Erscheinung hohe Stabilität gewährleistet und den Anforderungen an Wind- und Witterungsbeständigkeit standhält.
In Fahrtrichtung Tunnel sorgen die Tafeln für eine eindeutige Orientierung und führen Velofahrende intuitiv in den Stadttunnel.

Neben der Signaletik realisierten wir auch die Verkleidungen der Lüftungsanlagen im Tunnel.
Die grossflächigen Elemente bestehen aus Streckmetall, das zunächst feuerverzinkt und anschliessend weiss beschichtet wurde. Dadurch entsteht ein dauerhafter Korrosionsschutz in Kombination mit einer ruhigen, homogenen Erscheinung.
Die filigrane Struktur des Streckmetalls gewährleistet die notwendige Luftzirkulation, schützt die Technik dahinter und fügt sich gleichzeitig zurückhaltend in die klare Betonarchitektur des Velotunnels ein.

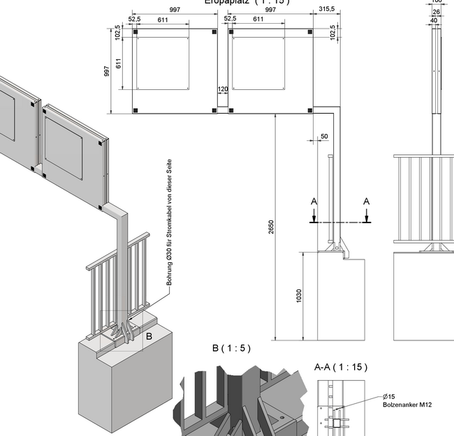
Im 3D-Modell wird der konstruktive Aufbau der Signaltafeln sichtbar.
Gut erkennbar ist der integrierte Ausschnitt für die Digitalanzeige, welche die aktuelle Belegung der Velo-Parkplätze anzeigt. Die Öffnung ist präzise in die Metallkonstruktion eingearbeitet und konstruktiv so gelöst, dass Anzeige, Befestigung und Servicezugang sauber integriert sind.
Die Kombination aus perforierter Fläche, aufgesetzter Informationstafel und digitalem Modul zeigt den modularen Aufbau des Systems – technisch durchdacht, wartungsfreundlich und konsequent aus dem 3D-Modell für Produktion und Montage abgeleitet.





